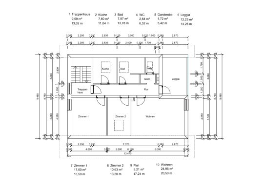
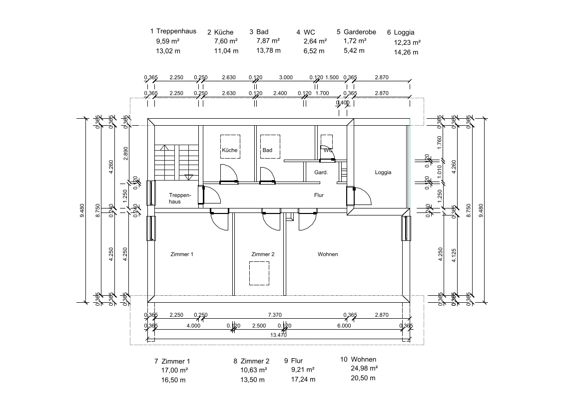
Grundrisse
Ein gut gestalteter Grundriss ist mehr als eine Zeichnung – er ist der erste Moment, in dem ein Zuhause fühlbar wird.
Er schafft Orientierung, weckt Emotionen und lässt Interessenten sofort verstehen, wie sie hier leben könnten.
Für Makler und Bauträger bedeutet das weniger Erklärungsbedarf, mehr qualifizierte Anfragen und stärkere Bindung zum Objekt.
Professionelle Grundrisse vermitteln Kompetenz, steigern den wahrgenommenen Wert der Immobilie und sorgen dafür, dass Besichtigungen mit echtem Interesse stattfinden – nicht nur aus Neugier.
Kurz gesagt: Wer gute Grundrisse zeigt, verkauft nicht nur Räume, sondern ein Lebensgefühl.




